417 W. Sherman Ave., Pontiac, IL 61764

$550,000.00

OVERVIEW

This huge commercial property if full of potential, character, nostalgia, and charm. Formerly built for a manufacturer of wooden pallets and wooden crates for the neighboring printing press companies. The property was later repurposed to house a commercial construction company. The main building is timber built with brick exterior and is a massive 15,828 square feet with several updates in 2013. The steel building is a 7,560 square foot clear-span structure with 14’x14’ overhead doors. The fenced in back lot is 0.5 acres with a 28’ sliding gate.

DETAILS:

  • 23,388 sq. ft.

  • 1.08 Total Acres/0.5 Acre Fenced Area

  • 2021 Property Tax: $13,660.00

  • Tax Pin:15-15-22-212-005

  • City: Pontiac

  • County: Livingston

  • Zoned: Commercial

Metal Building Floor Plan PDF
Site Layout PDF
Square Footage Map PDF
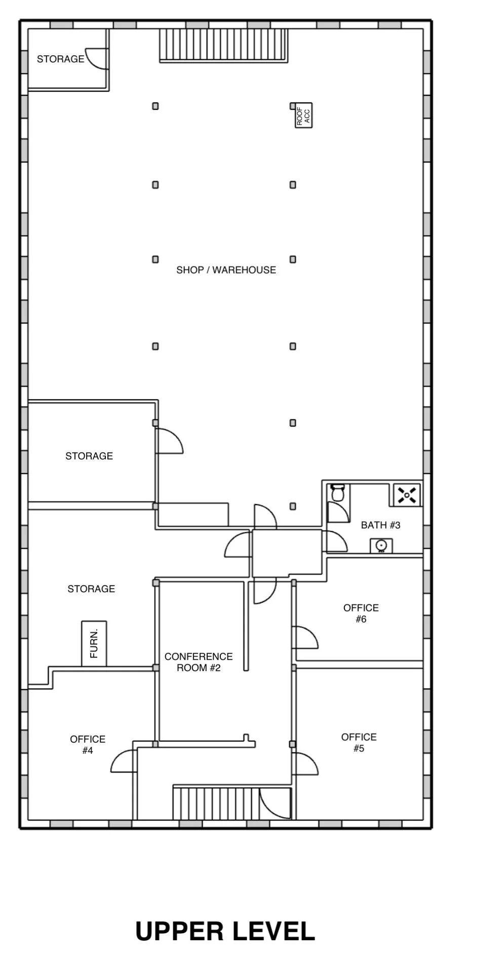
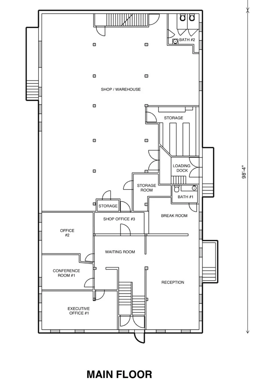
Main Building Floor Plan PDF

Reception Area - Click to view interactive 360°

Work Shop - Click to view interactive 360°

2nd Floor Storage - Click to view interactive 360°

Basement Storage - Click to view interactive 360°

MAIN BUILDING DETAILS

  • 15,828 TOTAL sq. ft./3,501 Office sq. ft.

  • Heating: Entire Building

  • Central A/C: Office Area Only

  • Floors: 3

  • Construction: Brick With Wood Timbers

  • Roof: EPDM

  • Windows: New in 2013

  • Electric: 3 Phase

  • Utilities: Natural Gas & Water

  • HVAC: Boiler/Radiator + Forced Air

Metal Building - Click to view interactive 360°

METAL BUILDING DETAILS

  • 7,560 SF

  • Built: 1978

  • Construction: Steel

  • HVAC: None

  • Insulated: Yes

  • Electric/Lighting: Yes